Details

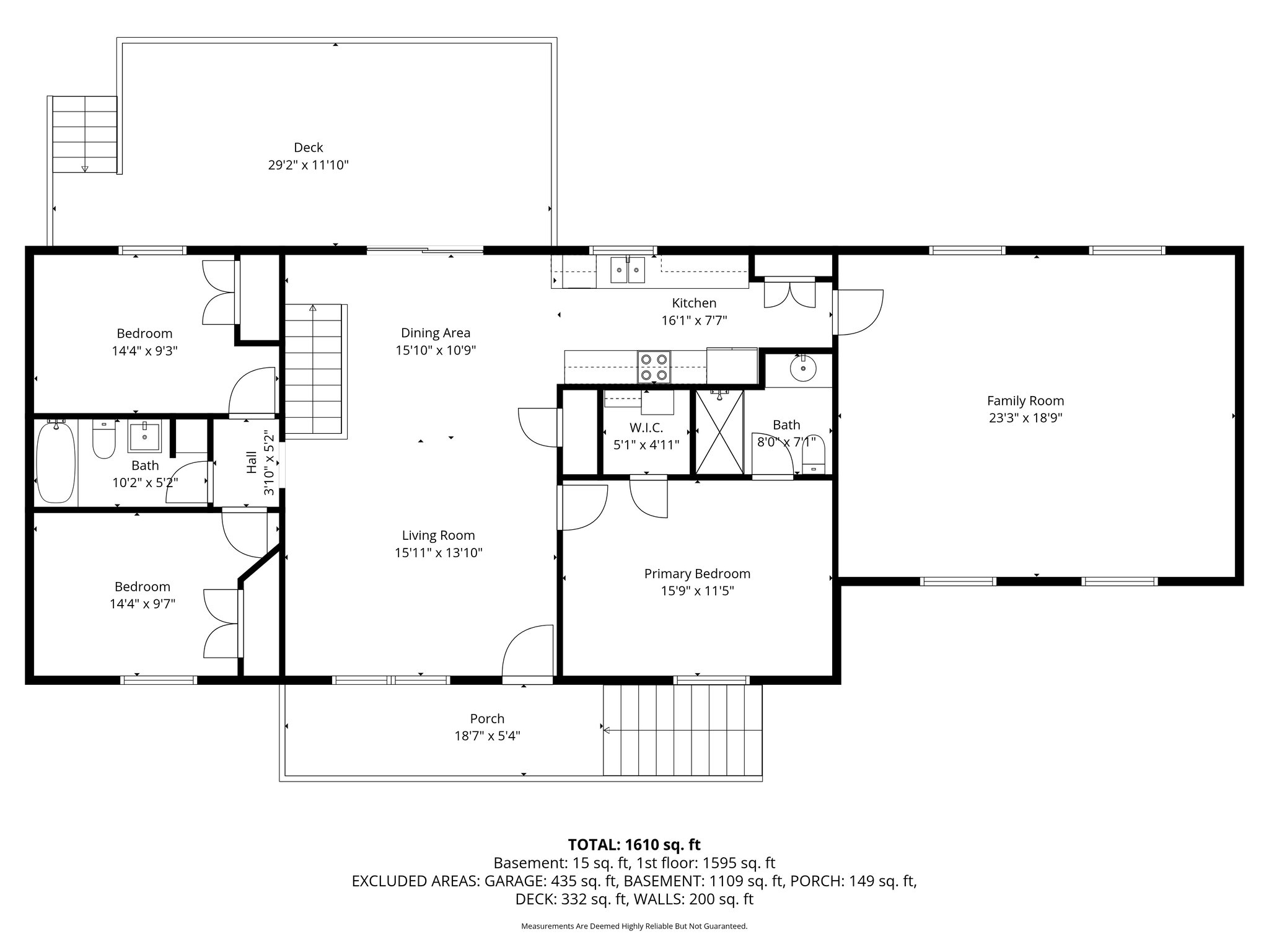
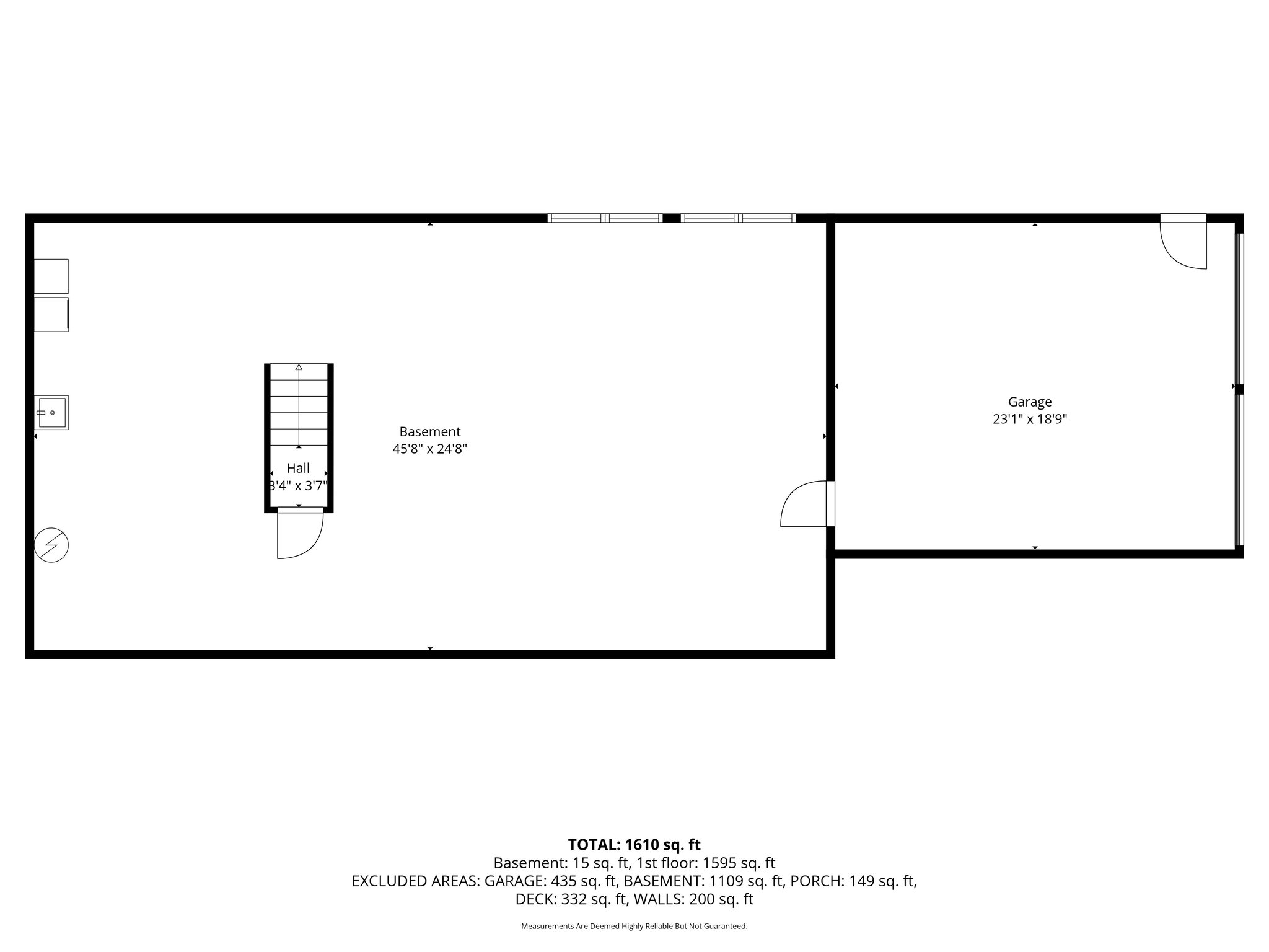
Enjoy the best of Shannondale living with this well-built ranch-style home offering mountain charm, comfortable main-level living, and a convenient location for commuters traveling into Virginia. Built in 2012 by custom builder Hampton Homes, this 3-bedroom, 2-bath home features 1,734 square feet, a 2-car garage, private well, septic system, water softener, and heat pump.

The main level offers a practical and inviting layout, with all bedrooms conveniently located on one floor. Hardwood flooring adds warmth throughout key living areas, while ceramic tile in the bathrooms provides a clean, durable finish. One of the home’s standout spaces is the large, bright family room, featuring hardwood floors, a cathedral ceiling, recessed lighting, and plenty of room to gather, relax, or entertain.

Outdoor living is easy on the spacious 29 x 12 Trex deck, offering generous room for grilling, dining, or simply enjoying the peaceful mountain setting. The unfinished walk-out basement provides excellent future potential, with a pellet stove, bar rough-in, and rough-in for a bath already in place.

Located in the Shannondale subdivision, this home offers a relaxed Harpers Ferry lifestyle with access to the natural beauty of the area, including nearby Lake Shannondale, Mountain Lake Club, the Shenandoah River, Appalachian Trail access, Shannondale Springs Wildlife Management Area, and Mount Mission Park. With commuter access toward Virginia still within reach, 949 Wild Rose Lane offers the space, setting, and flexibility to enjoy mountain living without feeling far from where you need to be.

  • $405,000
  • 3 Bedrooms
  • 2 Bathrooms
  • 1,733 Sq/ft
  • Lot 0.46 Acres
  • 6 Parking Spots
  • Built in 2012
  • MLS: WVJF2023586

Images

Videos

Floor Plans